60.000 €
Reservada

Maison de ville avec histoire à Sant Joan les Fonts (SJF1)

Sant Joan les Fonts
Girona
Vistes

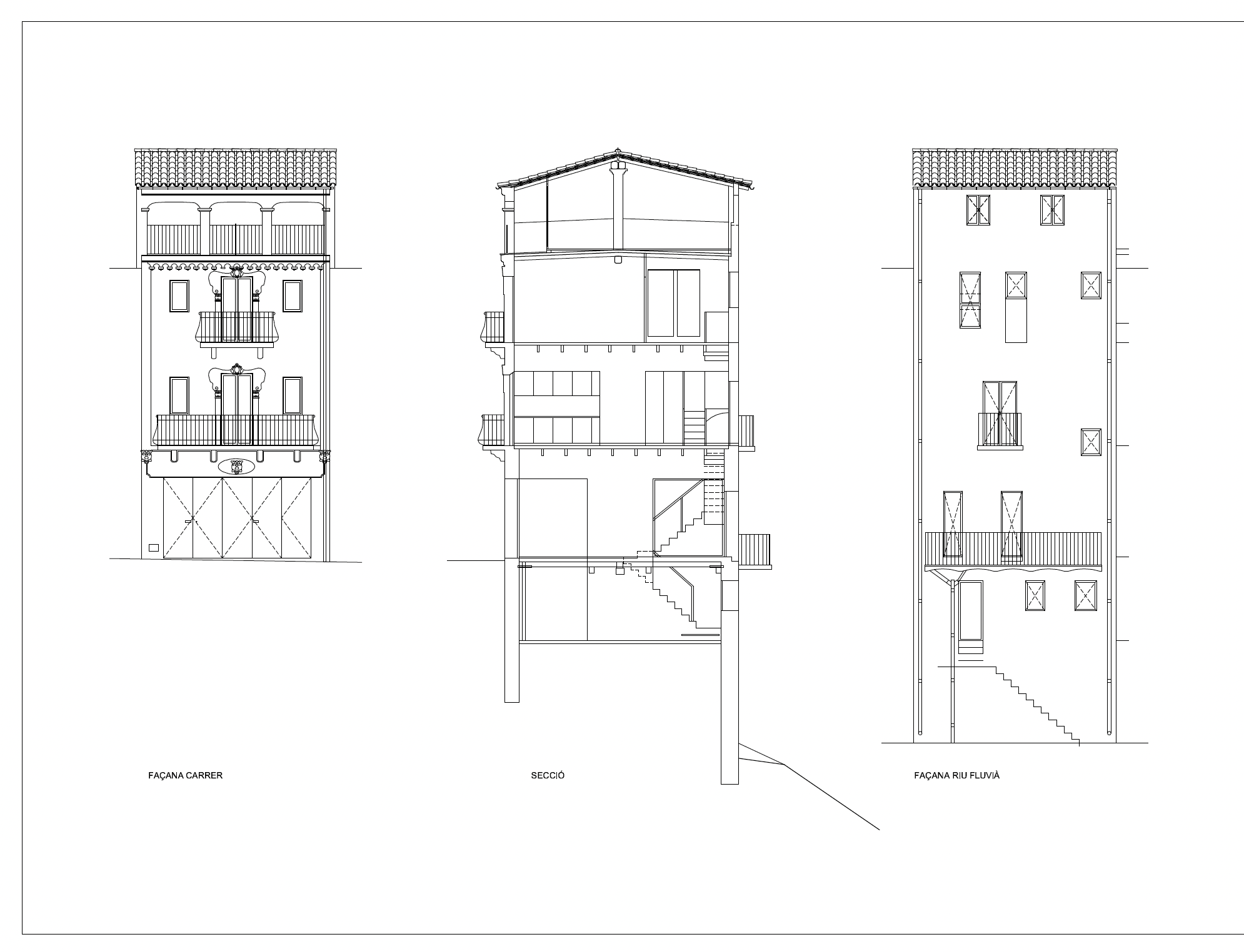
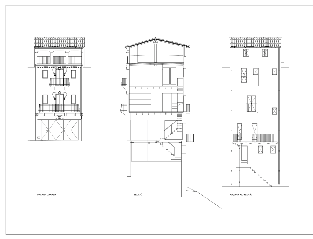
La "Casa del Moliner" o Can Feliu, així s'anomena aquest edifici del casc antic de Sant Joan les Fonts, a tocar del riu Fluvià.

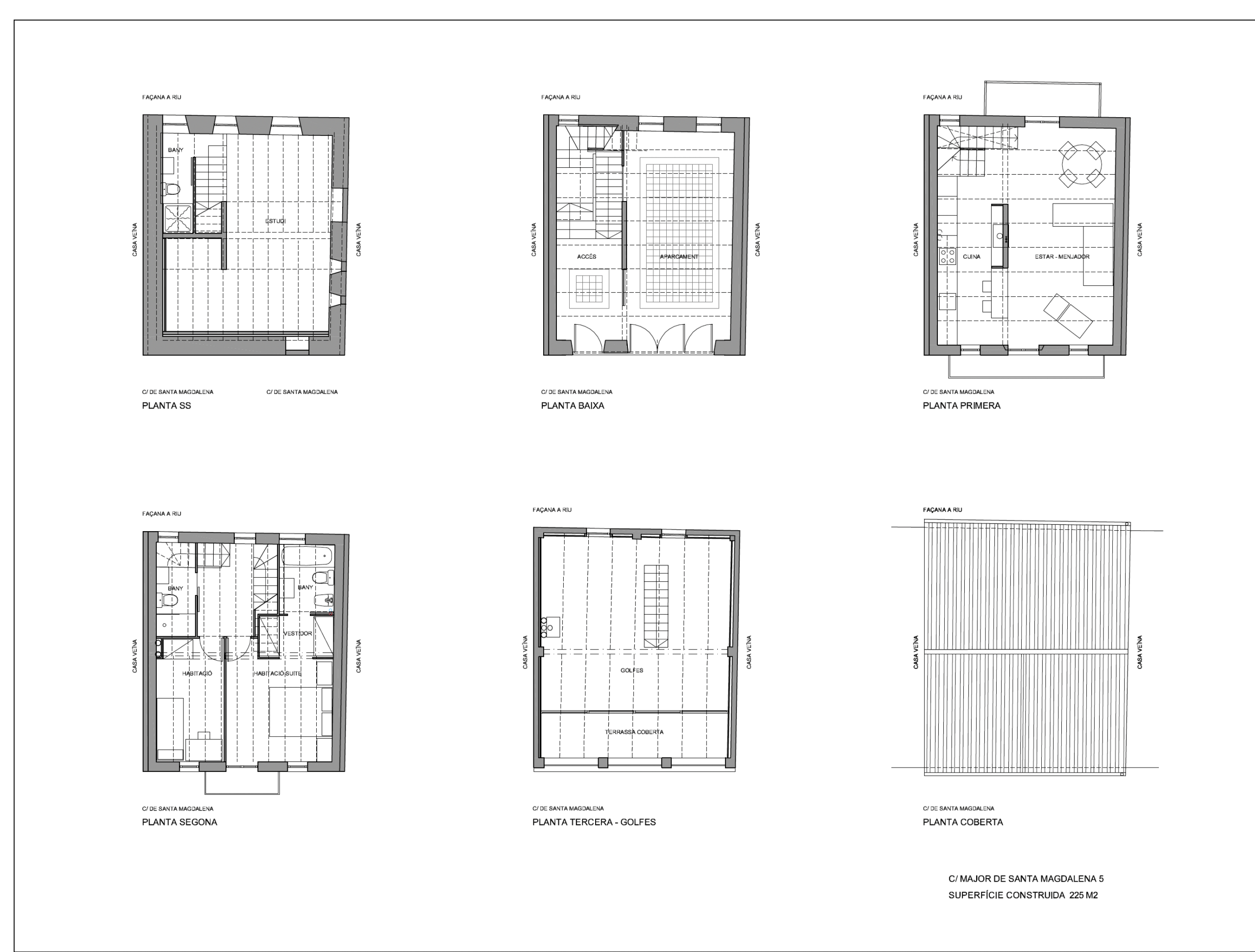
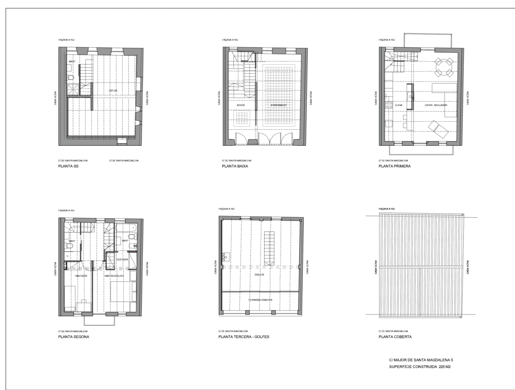
Els seus 225m2 es reparteixen en una distribució vertical, amb una planta a nivell de carrer, on hi havia hagut una botiga; tres plantes superiors fins arribar a l'altell amb vistes, i una planta semi-soterrada, amb un balcó amb vistes al riu. En total, cinc plantes de 45m2 construïts cada una.

L'edificació requereix de reforma integral. Actualment es troba apuntalada per seguretat, tot i que estructuralment els forjats de planta i la teulada es poden consevar, afegint reforços i substituïnt puntualment alguna biga, evitant haver d'enderrocar els interiors.

Arquitectònicament conserva elements d'interès, especialment exteriors, que li atorguen un toc especial.

S'incorporen plànols i renders amb una distribució interior orientativa, per ajudar a veure les possibilitats. En l'estat actual no és hipotecable.

S'ubica aprop del centre sociocultural de Sant Joan, a 5 minuts a peu del riu Fluvià i de rutes de muntanya, a 5 minuts en cotxe d'Olot, i ben connectat per autovia en direcció Girona i Costa Brava.Número API: 1166-GI, número registro: 12176

La "Casa del Moliner" o Can Feliu, així s'anomena aquest edifici del casc antic de Sant Joan les Fonts, a tocar del riu Fluvià.

Els seus 225m2 es reparteixen en una distribució vertical, amb una planta a nivell de carrer, on hi havia hagut una botiga; tres plantes superiors fins arribar a l'altell amb vistes, i una planta semi-soterrada, amb un balcó amb vistes al riu. En total, cinc plantes de 45m2 construïts cada una.

L'edificació requereix de reforma integral. Actualment es troba apuntalada per seguretat, tot i que estructuralment els forjats de planta i la teulada es poden consevar, afegint reforços i substituïnt puntualment alguna biga, evitant haver d'enderrocar els interiors.

Arquitectònicament conserva elements d'interès, especialment exteriors, que li atorguen un toc especial.

S'incorporen plànols i renders amb una distribució interior orientativa, per ajudar a veure les possibilitats. En l'estat actual no és hipotecable.

S'ubica aprop del centre sociocultural de Sant Joan, a 5 minuts a peu del riu Fluvià i de rutes de muntanya, a 5 minuts en cotxe d'Olot, i ben connectat per autovia en direcció Girona i Costa Brava.Número API: 1166-GI, número registro: 12176

Information

Superficie bâtie : 225 m2
Surface utile : 150 m2
Aire du tracé : Quelconque
Chambres: 2
Salle de bain 2
Autres espaces : 2
Année de construction : 1972
Etat de conservation : Necessita reforma
Orientation: Sud

Certificat énergétique

Catégorie d’émissions :
exempt
kW h m2 / any
Catégorie de consommation d’énergie :
exempt
kg CO2 m2 / any

Parlons

Ce champ n’est utilisé qu’à des fins de validation et devrait rester inchangé.

Ne trouvez
pas ce que
vous cherchez?